https://zimg.paragon.ice.com/ParagonImages/Property/PG/BCAR/395082/0/0/0/14f5a0a1891899cd825812ab252ef0db/7/819f302444b6257809ce96678a2e3ac3/395082-aecaa130-2970-4a8f-9cf1-7c0ee5bfab02.JPG
3 Beds
3.5 Baths
2480 sqft
Active

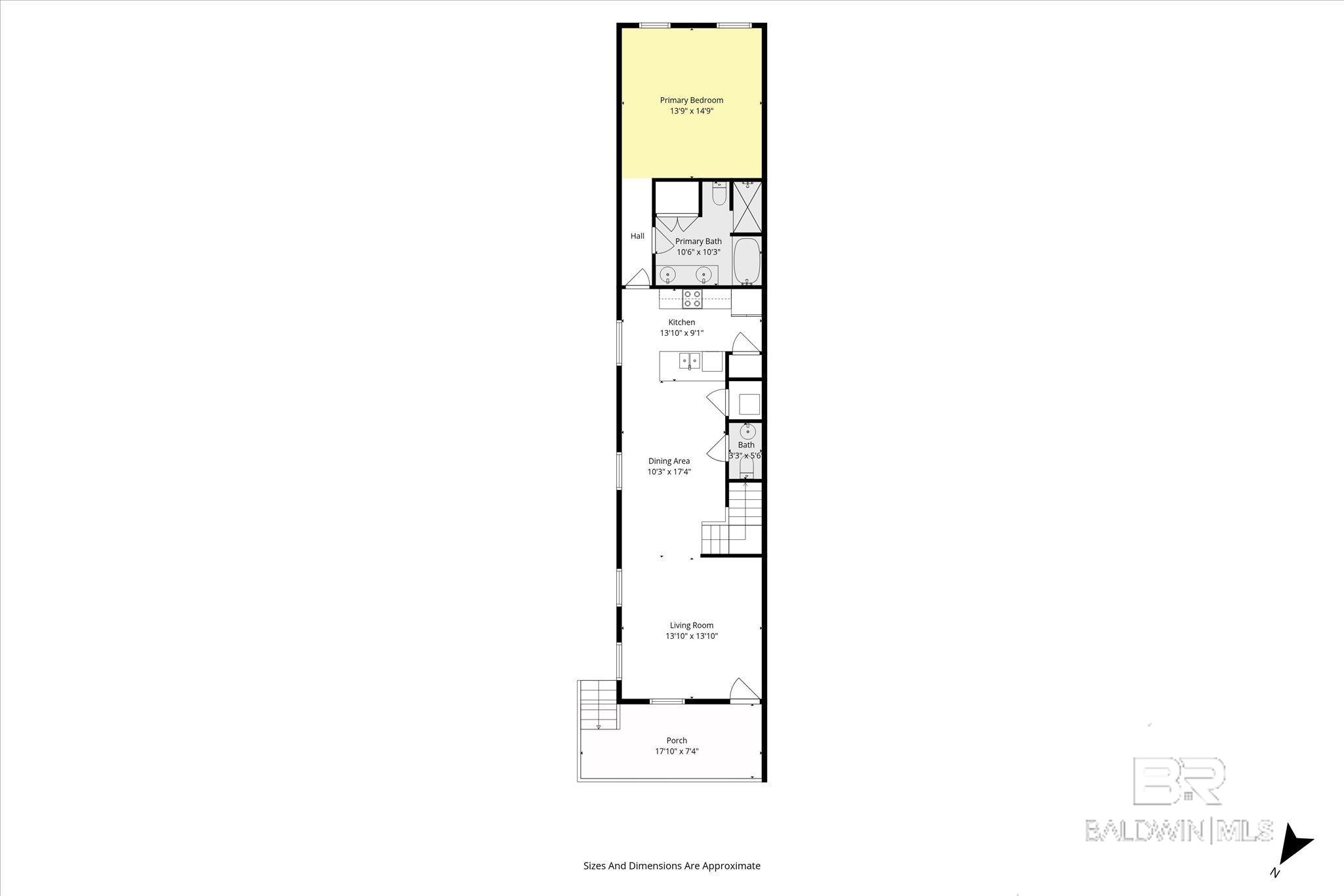
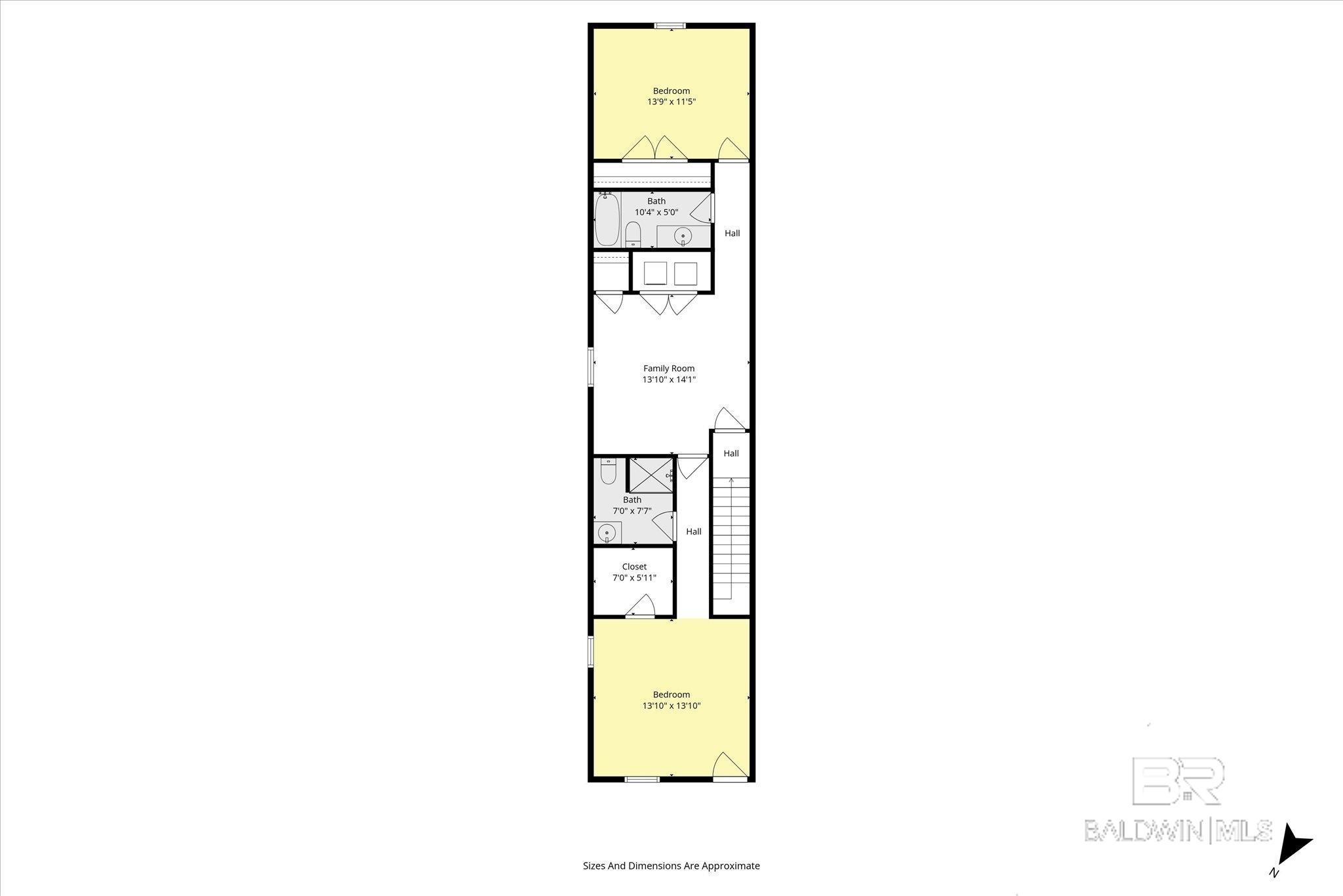
Whether you're searching for a full-time residence or the perfect beach getaway, this home is a must -see!Ideally located in the heart of Gulf Shores-just two blocks from the beach-this property offers stunning views of Little Lagoon and sits directly on a canal, making it excellent for kayaking, boating, and fishing right from your backyard. This beautifully updated duplex (Side A) features 3 bedrooms and 3.5 baths, including two private ensuites. The main level suite overlooks the canal and includes a spacious bathroom with double vanities, a garden tub, a tiled shower, and a large walk-in closet. Upstairs, the second ensuite offers its own private bath and balcony, along with an additional bedroom and a versatile flex space ideal for a second living area, office, or game room.Completely renovated in 2021, upgrades include a fortified roof, new exterior siding, fresh paint, window treatments, vinyl plank flooring in bedrooms, updated fans, insulation, new A/C units, and built in office furniture in the upstairs suite.The ground-level carport area includes a large storage room- perfect for beach gear, tools, and more. Conveniently located near shopping and dining, this home offers both comfort and accessibility. Additional highlights: No HOA and long-term rentals (6 + months) are allowed. Don't miss this opportunity-schedule your showing today and start living the beach life!! Buyer to verify all information during due diligence.

Property Details

Acres 0.31
Area 2480
Area Source Seller
Baths Full 3
Baths Half 1
Bedrooms 3
Construction Wood Siding, Wood Frame
Cooling Coastal Green Air
Fireplaces 0
Flooring Tile, Vinyl
Heating Electric, Heat Pump
Interior Features Breakfast Bar, Bonus Room, Living Room, Ceiling Fan(s), High Ceilings, Internet, Split Bedroom Plan
Lot Description 1-3 acres
Lot Size 75 x 179
Lot Size Area 13503.6
Lot Size Area Units Square Feet
Occupant Type Vacant
Parking Three Car Carport
Roof Composition, Ridge Vent
Sub Type Duplex
Sub Type Text Duplex
Subdivision Windmill Road Condos
Type RES
View Direct Lagoon-Across Rd
Year Built 2005

Geographic Details

County Baldwin
Directions From Highway 59 South, turn right onto Windmill Ridge Road, cross over small bridge and Condo is on left just before the curve. It is Unit A on left side of duplex.
Lat 30.250572
Lng -87.698506
Market Area Gulf Shores 1

Agent Contact

Cell 251-463-6955
Email carolLee@robertsbrothers.com
Office 251-301-1112

School Information

Elementary School Gulf Shores Elementary
High School Gulf Shores High
Middle School Gulf Shores Middle

MLS Information

Area Gulf Shores 1
Original Entry Timestamp 2026-04-14T19:07:24.7Z
Originating System Name Baldwin County
Status Active
Status Text Active