http://cdnparap60.paragonrels.com/ParagonImages/Property/P6/BCAR/388777/0/0/0/437ca9db07d9b6cd271292e7f744acd4/7/8224525624f4d869d6881770455d1b18/388777-2F852106-45EC-42B8-AF23-659BE8594AB9.JPG
3 Beds
2 Baths
2398 sqft
Active

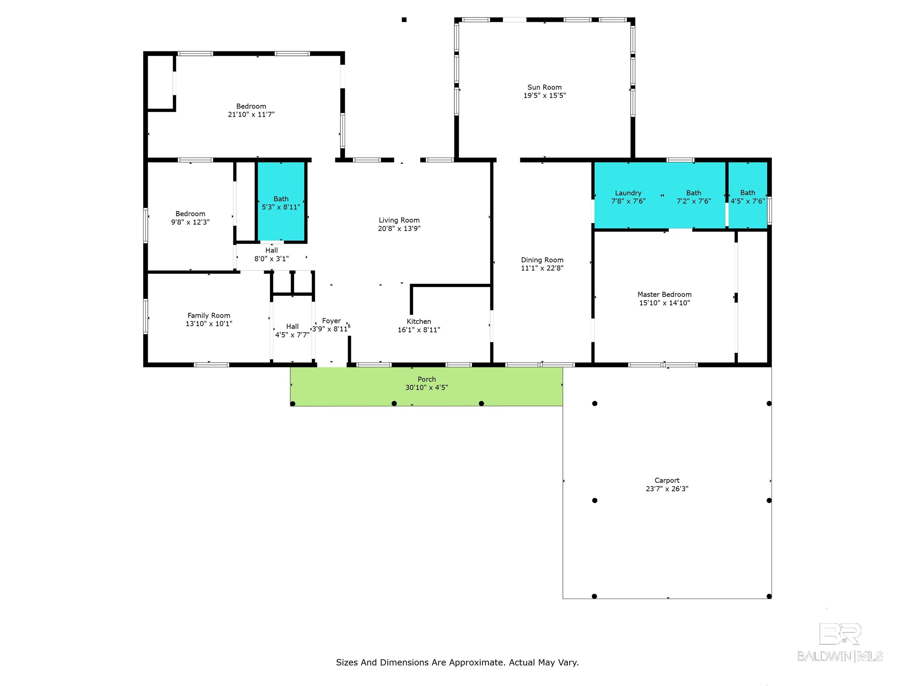
Priced over 30K below tax evaluation. Fantastic location with 3 bedrooms and 2 baths plus 2 flex rooms that you can use as you desire. Total living space is 2398 sq ft. The primary bedroom currently has concrete flooring. This property sits on 3 beautiful lots making it over a half acre. You’ll enjoy the close proximity to Max Griffin Park and downtown Foley. It’s peaceful and private yet you’re only minutes to restaurants, shopping, OWA and the beautiful Gulf beaches. Cash, Conventional and/or Renovation loan. Buyer to verify all information during due diligence.

Property Details

Roof Metal, Ridge Vent
Cooling Ceiling Fan(s)
Area 2398
Baths Full 2
Baths Half 0
Stories 1
Fireplaces 0
Flooring Other Floors-See Remarks
Heating Electric, Central
Foundation Slab
Laundry Features Main Level
Lot Description Less than 1 acre, Level
Bedrooms 3
Interior Features Sun Room, Ceiling Fan(s)
Lot Size 150 x 171.8
Area Source Agent Measured
View None/Not Applicable
Lot Size Area 25395.48
Subdivision City of Foley
Construction Brick
Parking Double Carport
Lot Size Area Units Square Feet
Type RES
Acres 0.583
Sub Type Text Single Story
Year Built 1960

Geographic Details

County Baldwin
Lat 30.401006
Lng -87.687583
Market Area Foley 2
Directions From Hwy 59 turn West on W. Roosevelt Ave. to South onto S. Pine Street to Right on W. Pedigo Ave. House is on the corner.

Agent Contact

Email singleton_m@att.net
Office 251-990-6622
Cell 251-990-6622

School Information

Middle School Foley Middle
High School Foley High
Elementary School Foley Elementary

MLS Information

Status Active
Area Foley 2
Original Entry Timestamp 2025-12-05T21:14:40.8Z
Originating System Name Baldwin County
Status Text Active

© 2025 Katapult Properties. All Rights Reserved. | Website by Sandpiper Studio