http://cdnparap60.paragonrels.com/ParagonImages/Property/P6/BCAR/386375/0/0/0/d3ba2266e99e96f0944a3b46d72316b2/7/30e6087d04017bc9a92fe961af9a2b9e/386375-da3316be-4f6e-49f6-8aa7-afc237b7ce27.JPG
5 Beds
3 Baths
1890 sqft
Active

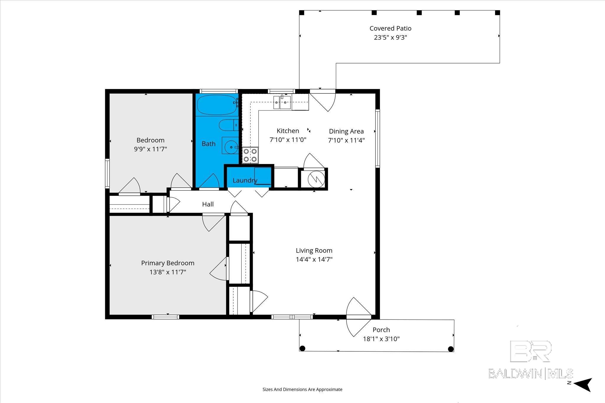
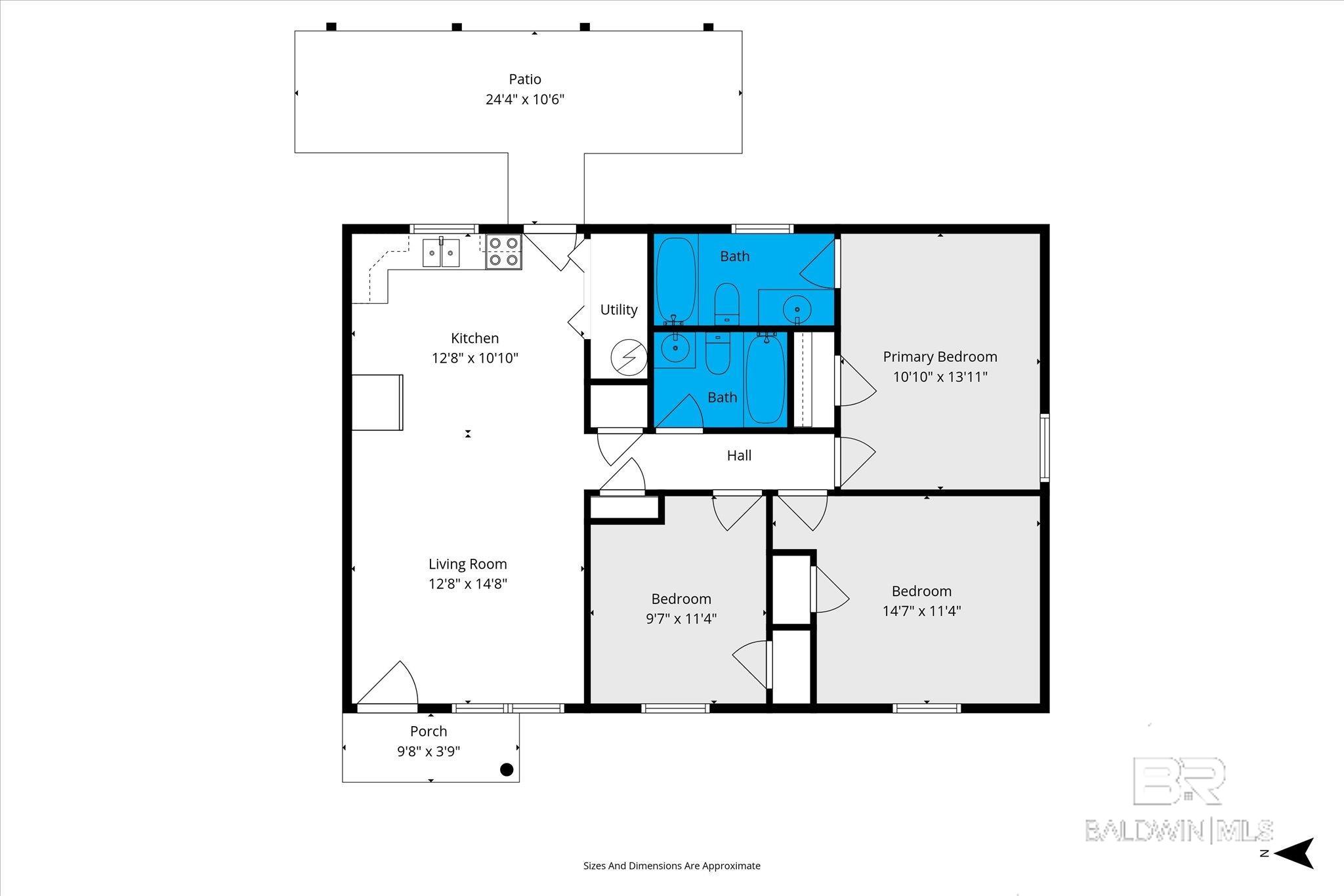
BAYOU SHORES-does it get more peaceful sounding than that?! If you like being part of a water community, Bayou Shores subdivision might just be the place for you. A nice mix of RV lots, mobile homes, stilt homes and traditional homes, this duplex rounds out the possibilities. Whether it is Bayou Jonas (about 200 yards away), West Fowl River, Mobile Bay or the Gulf of America, there is plenty of water to play in. Also nearby is Bellingrath Gardens, which boasts some of the prettiest ornamental plants in the South. For more water excitement, drive about fifteen minutes to Dauphin Island, the sunset capital of Alabama, and take the ferry to Fort Morgan. Coden, the coastal fishing village that this little oasis is located in, is situated off Bayou Coden from the original French name, Coq d'Inde. In the late 1800's, Coden was known for its many resorts. Unit A is a cozy 2 bedroom, 1 bathroom, while unit B is a spacious 3 bedroom, 2 bathroom. You could choose to live on one side of this peaceful retreat and rent out the other side or add both units to your rental portfolio. There are plenty of lots available if you would like to expand your rental income in this quaint community. All appliances convey and both units are rented out for instant income. Unit-A rents for $995 per month and Unit-B $1095. To round everything off, there are spacious front and backyards for your personal enjoyment. Buyer or buyer's agent to confirm all information. Thank you! Buyer to verify all information during due diligence.

Property Details

Roof Composition
Area 1890
Baths Full 3
Baths Half 0
Stories 1
Fireplaces 0
Flooring Luxury Vinyl Plank
Heating Electric
Foundation Slab
Lot Description Less than 1 acre, Level, Few Trees, Subdivision, Elevation-Low
Sub Type Duplex
Bedrooms 5
Interior Features Ceiling Fan(s), Internet
Lot Size 128 x 168 x 129 x 169
Area Source Assessor
View Indirect Bayou-Across Rd, Wooded, Skyline
Lot Size Area 21344.4
Subdivision Bayou Shores
Construction Brick, Wood Siding, Solid Masonry, Wood Frame
Parking See Remarks
Lot Size Area Units Square Feet
Type RES
Acres 0.49
Occupant Type Tenant
Sub Type Text Duplex
Year Built 2005

Geographic Details

County Mobile
Lat 30.395705
Lng -88.151826
Market Area Mobile County
Directions From Bellingrath Rd. (CR-59), turn right onto Bayou Shores Dr. Go 0.01 miles and turn right onto River Oaks Dr. Go 223 feet and duplex will be on your right.

Agent Contact

Email terryshelburne@att.net
Office 251-450-1481
Cell 731-695-5360

School Information

Middle School Peter F Alba
High School Alma Bryant
Elementary School Anna F Booth

MLS Information

Status Active
Area Mobile County
Original Entry Timestamp 2025-10-09T19:47:04.7Z
Originating System Name Baldwin County
Status Text Active

© 2025 Katapult Properties. All Rights Reserved. | Website by Sandpiper Studio