http://cdnparap60.paragonrels.com/ParagonImages/Property/P6/BCAR/378544/0/0/0/11fc88f04aed2b4eeece1757edbe0f03/7/7e7c92272a747ff6d65c3ca699924024/378544-28a5789e-f372-45b7-be88-186714851673.JPG
4 Beds
3 Baths
2594 sqft
Active

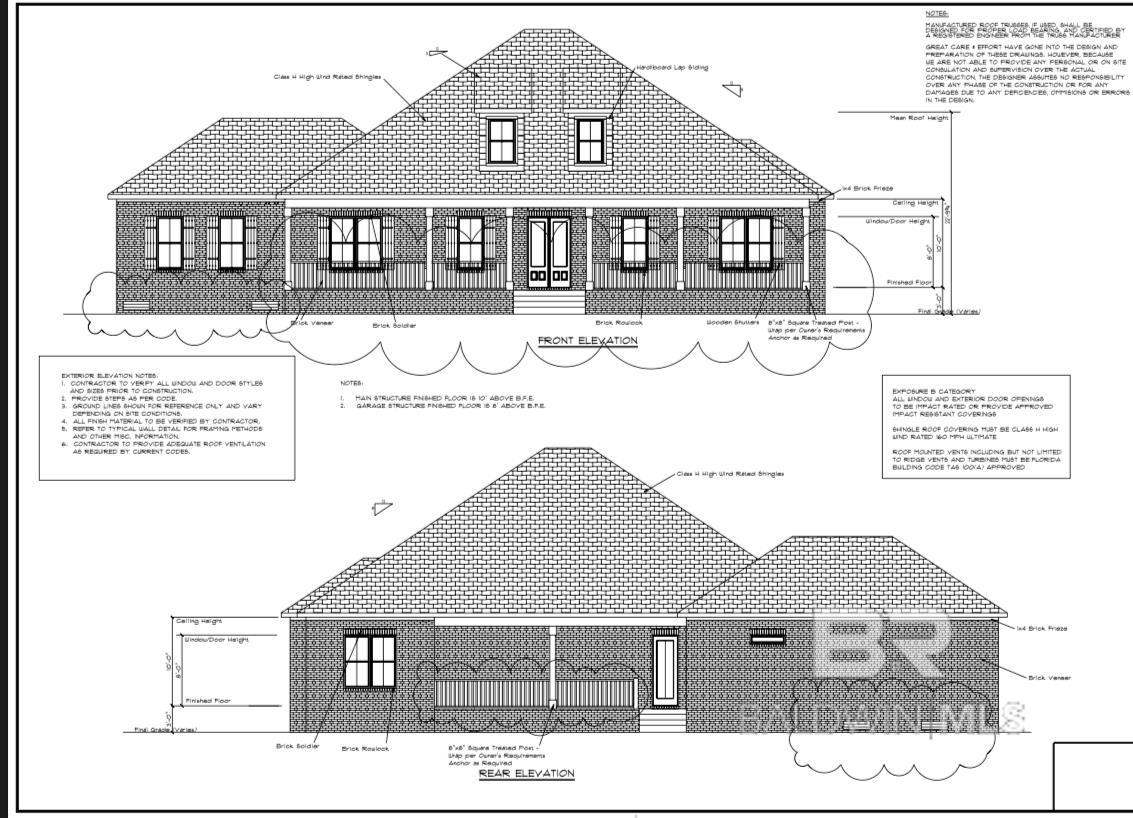
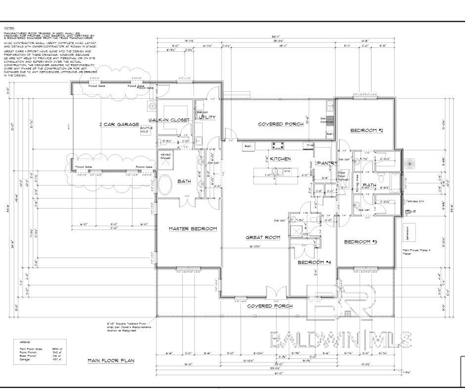
This home has CURB APPEAL! Brand New construction on a large corner lot in classic Wedgewood area of Gulf Shores. This stunning 4-bedroom, 3-bathroom home, under construction with an estimated completion of mid February 2026, offers luxurious features throughout and 858 sqft of inviting porches. Two car side entry garage. The exterior showcases Arctic Mist Acme brick, black shingles, white trim, Plygem windows, and classic shutters. The expansive front porch, perfect for Southern living, includes two ceiling fans, recessed lighting, and durable Hardie board ceiling, soffits, and fascia. Inside, the chef’s dream kitchen features high-end KitchenAid appliances, including a gas range, sleek quartz countertops, and a huge walk-in pantry. Open-concept living spaces boast 16" x 36" large format tile throughout, recessed can lighting, crown molding, and picture-frame window trim for an elegant touch. All bathrooms are appointed with tile flooring, quartz countertops, designer tile showers, and custom fixtures. Additional features include a Rinnai tankless water heater, 4-ton HVAC system, soffit lighting, and Gold Fortified construction for insurance savings. Complete with outdoor kitchen, grill sold separately. Home is also wired for a generator. Don’t miss this meticulously crafted home designed for modern luxury and comfort! *Listing photos are of a similar home recently completed by the builder Buyer to verify all information during due diligence.

Property Details

Roof Composition
Cooling Central Electric (Cool), Heat Pump
Style Traditional
Area 2594
Baths Full 3
Baths Half 0
Stories 1
Fireplaces 0
Flooring Tile, Luxury Vinyl Plank
Heating Heat Pump
Foundation Slab
Lot Description Less than 1 acre, Corner Lot, Level, Subdivision
Bedrooms 4
Interior Features Breakfast Bar, Ceiling Fan(s), En-Suite, High Ceilings, Split Bedroom Plan
Lot Size 82.7' x 166' IRR
Area Source Builder
Exterior Features Termite Contract
View Other-See Remarks
Lot Size Area 16335
Subdivision Bear Creek Estates
Construction Brick, Wood Frame, Fortified-Gold
Parking Attached, Double Garage, Automatic Garage Door
Lot Size Area Units Square Feet
Type RES
Acres 0.375
Sub Type Text Traditional
Year Built 2025

Geographic Details

County Baldwin
Lat 30.271893
Lng -87.710012
Market Area Gulf Shores 1
Directions On Highway 59 South just past bridge, turn right on W19th Ave. to right onto Wedgewood Dr. Continue on Wedgewood Dr. to Bear Creek Cove on the right. Corner lot on the left.

Agent Contact

Email Yarborough.peyton@gmail.com
Office 251-981-2400
Cell 251-979-8899

School Information

Middle School Gulf Shores Middle
High School Gulf Shores High
Elementary School Gulf Shores Elementary

MLS Information

Status Active
Area Gulf Shores 1
Original Entry Timestamp 2025-05-03T12:52:01.5Z
Originating System Name Baldwin County
Status Text Active

© 2026 Katapult Properties. All Rights Reserved. | Website by Sandpiper Studio